Technische Daten:
Modell: Kratki NBC 10 Kamineinsatz mit 3 Sichtscheiben, 10 KW und Hebetür (auch anders zu öffnen für eine perfekte Reinigung)
Farbe: Schwarz
Nennwärmeleistung: 10 kW
Wärmeleistungsbereich: 6,5 – 12 kW
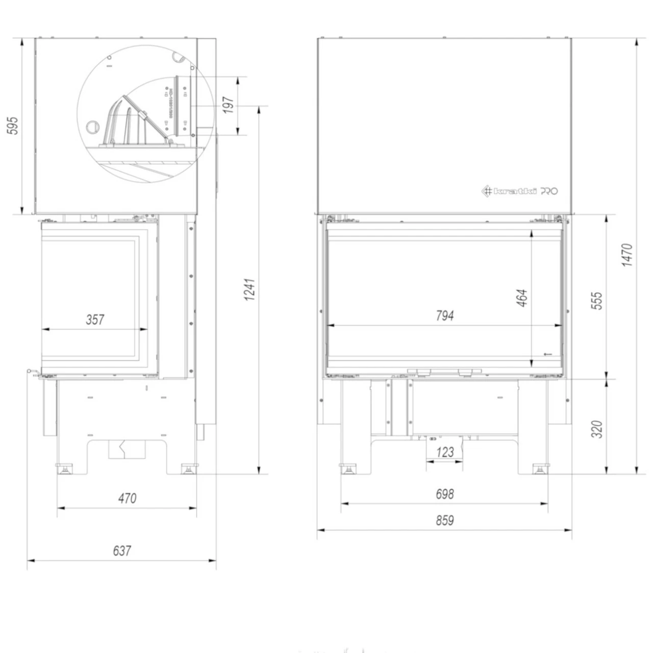
Maße des Kamins: Höhe: 147,0 cm x Breite: 87,6 cm x Tiefe: 63,7 cm
Maße der Glasscheibe: Höhe: 46,4 cm x Breite: 79,4 cm x Tiefe: 35,7 cm
Weitere Maße finden Sie bei den Bildern
Gewicht: 275 kg
Abstand zu brennbaren Materialien: vorne 100 cm
Rauchrohr-Durchmesser: 200 mm (197 mm)
Position Rauchrohr-Anschluss: hinten, oben (siehe Maßzeichnung)
Durchmesser Anschluss Externe Luftzufuhr: 125 mm (123 mm)
Position Anschluss Externe Luftzufuhr: unten
Brennstoff: Scheitholz und Holzbriketts
Max. Scheitholzlänge: 50 cm
Min. Luftdurchlassmenge Einlass: ≥ 500 cm²
Min. Luftdurchlassmenge Auslass: ≥ 700 cm²
Ausstattung:
Scheibenspülung (Sekundärluft) – Klare Sicht auf das Feuer – Luftstrom vor der Glasscheibe, dadurch wird die Verschmutzung der Scheibe minimiert
Anschluss für Externe Luftzufuhr – Optional anschließbar – Mit der Externen Luftzufuhr können Sie den Ofen mit Luft aus einem Nebenraum oder von außen beheizen. Dies wirkt sich positiv auf das Raumklima aus, da kein Sauerstoff aus dem Raum verbrannt wird. Der Anschluss für die Externe Luftzufuhr ermöglicht auch einen Anschluss einer elektronischen Verbrennungsluft Regelung
Glutrost und Aschetopf
24 Stunden Betrieb möglich
Untergestell mit Verstellbaren Füßen
Die Glasscheibe ist bis zu 800°C Hitzebeständig
Der Kamineinsatz ist mit einer Primär-, Sekundär- und Tertierluft ausgestattet
Hebetür/Schiebetür, welche sich auch normal öffnen lässt, um eine perfekte Reinigung zu ermöglichen
Daten für den Schornsteinfeger:
Bauart A1 (Selbstschliessende Tür): Ja, optional (selbst-einstellbar)
Bundesimmissionsschutzverordnung (BImSchV): 1. Stufe: Ja, 2. Stufe: Ja
CE Zeichen: Ja
Wirkungsgrad (Energieeffizienz): 81 %
Staub: 32 mg/Nm³
CO-Emission (bei 13% O2): 0,10% / 1241 mg/m³
Abgastemperatur: 260 °C
Abgasmassenstrom: 9,8 g/s
Erforderlicher Druck bei Nennwärmeleistung: 12 Pa +/-2 Pa
Dekorationsartikel und Rauchrohre gehören nicht zum Leistungsumfang
Bitte sprechen Sie vor dem Kauf mit Ihrem zuständigen Schornsteinfegermeister. Lassen Sie Ihren Schornstein vor dem Einbau der Feuerstelle auf Verwendbarkeit prüfen. Beachten Sie außerdem die Bedienungsanleitungen und die Sicherheitsabstände.
Wir sind nach dem aktuellen Verpackungsgesetz gemäß § 15 Abs. 1 S. 1 VerpackG dazu verpflichtet, folgende Verpackungsmaterialien von Endverbrauchern auf Wunsch unentgeltlich zurückzunehmen:
Transportverpackungen, wie etwa Paletten, Großverpackungen, etc., Verkaufs- und Umverpackungen, die nach Gebrauch typischerweise nicht bei privaten Endverbrauchern als Abfall anfallen, Verkaufs- und Umverpackungen, für die wegen Systemunverträglichkeit nach § 7 Absatz 5 eine Systembeteiligung nicht möglich ist, und Verkaufsverpackungen schadstoffhaltiger Füllgüter oder Mehrwegverpackungen.
Bei Lieferung des Produktes wird entsprechendes Verpackungsmaterial verwendet, dieses nehmen wir unentgeltlich zurück. Wir stellen damit die Rückführung des Verpackungsmaterials in den Verwertungskreislauf sicher. Durch die Aufklärung über die Rückgabemöglichkeiten sollen bessere Ergebnisse bei der Rückführung von Verpackungen erzielt werden und ein Beitrag zur Erfüllung der europäischen Verwertungsziele nach der EU-Richtlinie 94/62/EG sichergestellt werden.
Sie können das Verpackungsmaterial als Endverbraucher am Ort der tatsächlichen Übergabe oder in dessen unmittelbarer Nähe abgeben.
- Download Leistungserklärung Kratki NBC 10 Kamineinsatz
- Download Bedienungsanleitung Kratki Warmluft Kamineinsätze
- Download Energielabel Kratki NBC 800 400
- Fragen zum Artikel?
- Weitere Artikel von Kratki













































Rezensionen
Es gibt noch keine Rezensionen.