Das moderne Design entspricht den aktuellen Trends in der Innenarchitektur.
Vorteile:
-Der Kamineinsatz ist für die Montage von Wärmekumulationsscheiben speziell angepasst
-Zweiteiliger gusseiserner Abgasstutzen, beweglich im Bereich von 360°
-Der Kaminkorpus und die Kaminfront sind aus Hochtemperatur-Kesselstahl
-Der Deflektor aus Acumotte verlängert den Weg der Abgase und sorgt für eine saubere Verbrennung
-Der Einsatz ist standardmäßig mit einer dekorativen Kaminglasscheibe ausgestattet
-Der Feuerraum ist mit Acumotte ausgelegt, der sechseckige Feuerraum trägt zur sauberen Verbrennung bei
–Der Einsatz hat kein Rost und kein Aschekasten, um das Ausbrennen der Asche zu gewährleisten
-Frischluftzufuhr über Primär- und Sekundärluft
-Die mitgelieferten regulierbaren Standfüße helfen bei der Einstellung der höhe
-Eingebauter externer Luftzufuhranschluss mit Luftschieber 125mm Durchmesser, zur Regulierung der Luftzufuhr
Technische Daten:
Modell: Kratki Nadia 14 Warmluft-Eckkkamineinsatz mit Links verglaster Hebetür
Nennwärmeleistung: 14 kW
Wärmeleistungsbereich: 6,5 – 17 kW
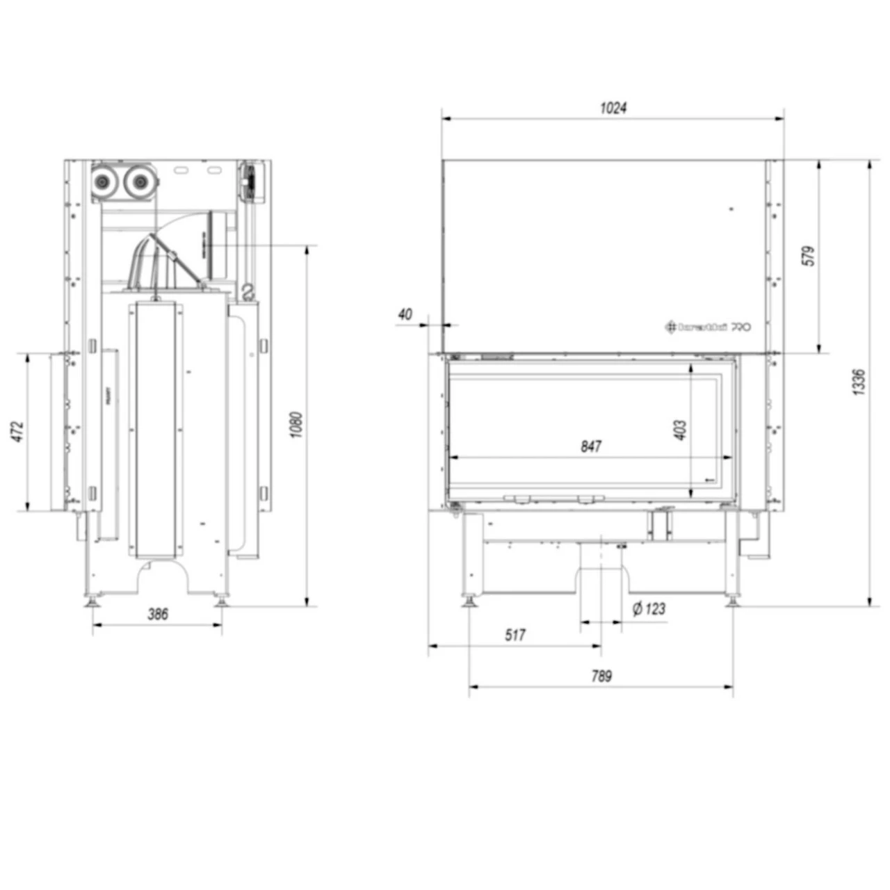
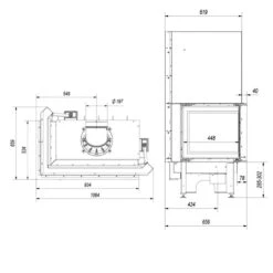
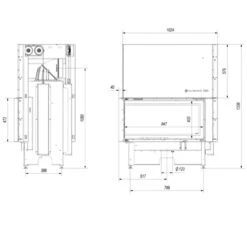
Maße des Kamins: Höhe: 133,6 cm x Breite: 106,4 cm x Tiefe: 65,9 cm
Maße der Glasscheibe: Höhe: 40,3 cm x Breite: 84,7 X 44,8 cm
Weitere Maße finden Sie bei den Bildern
Gewicht: 255 kg
Durchmesser Rauchrohr: 200 mm (197 mm)
Position Rauchrohr-Anschluss: oben
Durchmesser Anschluss Externe Luftzufuhr: 125 mm (123 mm)
Max. Scheitholzlänge: 70 cm
Brennstoff: Scheitholz und Holzbriketts
Min. Luftdurchlassmenge Einlass: ≥ 700 cm²
Min. Luftdurchlassmenge Auslass: ≥ 900 cm²
Ausstattung:
Scheibenspülung – Klare Sicht auf das Feuer – Luftstrom vor der Glasscheibe, dadurch wird die Verschmutzung der Scheibe minimiert
Anschluss für Externe Luftzufuhr – Optional anschließbar – Mit der externen Luftzufuhr können Sie den Ofen mit Luft aus einem Nebenraum oder von außen beheizen. Dies wirkt sich positiv auf das Raumklima aus, da kein Sauerstoff aus dem Raum verbrannt wird. Der Anschluss für die Externe Luftzufuhr ermöglicht auch einen Anschluss einer elektronischen Verbrennungsluft Regelung
Rostlose Verbrennung (Brennraum ohne Rost) – die Holzglut liegt direkt auf dem Schamotteboden des Brennraumes. Die Verbrennungsluftzufuhr wird nicht von unten, wie üblicherweise, zu der Glut zugeführt sondern durch die Brennraumwände, dadurch wird die Glut nicht so abgekühlt und führt zu einer vollständige Holzverbrennung und einen hohen Wirkungsgrad.
24 Stunden Betrieb möglich
Untergestell mit verstellbaren Füßen
Acumotte Feuerraum – Speichert die Wärme
Daten für den Schornsteinfeger:
Bauart A1 (Selbstschliessende Feuerraumtür): Optional
Bundesimmissionsschutzverordnung (BImSchV): 2. Stufe
Art. 15a B-VG (Österreich): Ja
Wirkungsgrad (Energieeffizienz): 80%
Staub: 37 mg/Nm³
CO-Emission (bei 13% O2): 1093 mg/Nm³
Abgastemperatur: 245 °C
Abgasmassenstrom: 14 g/s
Erforderlicher Druck bei Nennwärmeleistung: 12 Pa
Dekorationsartikel und Rauchrohre gehören nicht zum Leistungsumfang
Wir sind nach dem aktuellen Verpackungsgesetz gemäß § 15 Abs. 1 S. 1 VerpackG dazu verpflichtet, folgende Verpackungsmaterialien von Endverbrauchern auf Wunsch unentgeltlich zurückzunehmen:
Transportverpackungen, wie etwa Paletten, Großverpackungen, etc., Verkaufs- und Umverpackungen, die nach Gebrauch typischerweise nicht bei privaten Endverbrauchern als Abfall anfallen, Verkaufs- und Umverpackungen, für die wegen Systemunverträglichkeit nach § 7 Absatz 5 eine Systembeteiligung nicht möglich ist, und Verkaufsverpackungen schadstoffhaltiger Füllgüter oder Mehrwegverpackungen.
Bei Lieferung des Produktes wird entsprechendes Verpackungsmaterial verwendet, dieses nehmen wir unentgeltlich zurück. Wir stellen damit die Rückführung des Verpackungsmaterials in den Verwertungskreislauf sicher. Durch die Aufklärung über die Rückgabemöglichkeiten sollen bessere Ergebnisse bei der Rückführung von Verpackungen erzielt werden und ein Beitrag zur Erfüllung der europäischen Verwertungsziele nach der EU-Richtlinie 94/62/EG sichergestellt werden.
Sie können das Verpackungsmaterial als Endverbraucher am Ort der tatsächlichen Übergabe oder in dessen unmittelbarer Nähe abgeben.
- Download Bedienungsanleitung Kratki Nadia Warmluft Kamineinsatz
- Download Leistungserklärung Kratki Nadia 14
- Fragen zum Artikel?
- Weitere Artikel von Kratki

































Rezensionen
Es gibt noch keine Rezensionen.