Sie sind handwerklich geschickt und möchten Ihren Kamineinsatz selber bauen? Dann ist ein Kaminbausatz von Hajduk die beste Möglichkeit dies zu tun! Es werden alle benötigten Materialien (siehe unten) mitgeliefert (abhängig von den Gegebenheiten vor Ort).
Alle Modelle der Kamineinsätze und Heizungsanlagen von HAJDUK sind mit Hilfe von Lösungen entwickelt worden, die man bei den besten Herstellern Europas und der Welt finden kann.
Wasserkamineinsätze von Hajduk sind eine sparsame und Umweltfreundliche Lösung zur Haus und Warmwassererwärmung mit gleichzeitigem Wohlgefühl.
Für diejenigen, die, die größtmöglichen Heizkosten Ersparnisse suchen, haben Hajduk die Kamineinsätze mit Wassermantel entwickelt, die auch in Verbindung mit der Zentralheizung (mit Gas, Heizöl oder Wärmepumpe) funktionieren mit einem Pufferspeicher, an dem auch noch zusätzlich eine Solaranlage angeschlossen werden kann.
Der Wassergeführter-Kamineinsatz Volcano ist aus Kesselstahlstahl und mit einer hochwertigen Brennraumauskleidung versehen. Dieses Konzept ist eine lohnende Investition auch für Niedrigenergiehäuser. Der Heizeinsatz ist technisch ausgereift und mit einer großen Glasscheibe versehen. Der Kamineinsatz hat einen Wirkungsgrad von über 80% bis 90% und niedrige Abgaswerte (BImSchV Stufe 2).
Der Volcano hat eine externe Verbrennungsluftzufuhr, die ein gesundes Raumklima gewährleitstet. Eine Scheibenspülung sorgt für klare Sicht auf die Flammen. Die Drosselklappe lässt sich optimal über einem Leistungsbereich von 3 – 9 kW regulieren.
Vorteile der Kamineinsätze von HAJDUK:
Jeder Kamineinsatz mit Wassermantel von HAJDUK wird vor dem Versand einer Druck- und Dichtigkeitsprüfung an dem speziellen Kontrollplatz unterzogen.
Der thermische Wirkungsgrad der Kamineinsätze mit Wassermantel von HAJDUK erreicht einen Wert von bis zu 90 %. So gute Ergebnisse wurden bisher nur von luftheizenden Kamineinsätzen erreicht.
Die ganze Feuerstelle der Kamineinsätze mit Wassermantel von HAJDUK ist mit Schamotte ausgekleidet, wodurch höhere und stabilere Temperaturen innerhalb der Verbrennungskammer im Vergleich zu Kamineinsätzen ohne Schamotteinsatz erreicht werden.
Ein Teil der Standardausrüstung der Kamineinsätze mit Wassermantel von HAJDUK ist ein Kühler, der aus einem speziellen, geriffelten Schlangenrohr aus säurebeständigem Stahl besteht. Der Kühler ist ein zusätzlicher Überhitzungsschutz.
Die Kamineinsätze haben einen interner Wärmetauscher. Dieser besteht aus einem speziellen, geriffelten Schlangenrohr von entsprechend angepasster Länge, das in dem Wassermantel getaucht ist. Dies ermöglicht einen einfachen Anschluss an die Zentralheizung, ohne die Verwendung eines externen Plattenwärmetauschers.
Erfüllen schwierigste Europäische Normen EN 13240, auch die Anforderungen der BImSchV Stufe 2, Art. 5a B-VG von Österreich und LRV von der Schweiz
Kaminhaube mit dem Korpus fest verbunden, ohne Dichtungsmaterialien oder Schrauben, alles Geschweißt
Clear View – das System für automatische Scheibenreinigung
Das Luftzufuhr und -Verteilungssystem Jet Stream
Ein aufnahmefähiger, Herausnehmbarer Aschekasten
Feuerfeste Keramikscheiben
Ausführung gemäß der Europäischen Norm EN 13229 und der Norm DIN 18895, die den Verkauf von Produkten der Marke HAJDUK in ganz Europa zulassen.
Technische Daten:
Modell: Hajduk Volcano WLTH 12 Wassergeführter-Kamineinsatz Links Verglast Steglos mit Rahmenloser Hebetür mit gebogenen Glas
Nennwärmeleistung: 12 kW
Luftseitig: 6 kW und Wasserseitig: 6 kW
Energieeffizienzklasse: A+
Wasserinhalt: 50 L
Max. Betriebsdruck: 2,5 bar
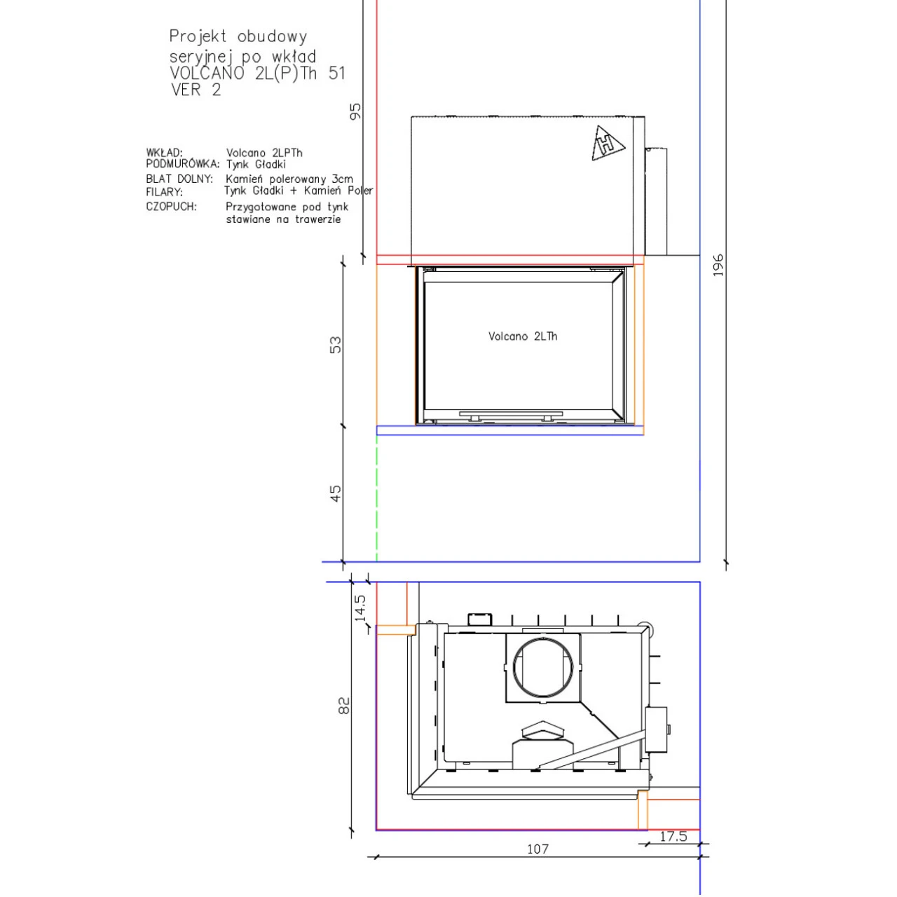
Maße des Kamineinsatzes: Höhe: 133,3 x Breite: 85,5 x Tiefe: 60 cm
Maße des Kaminbausatzes (siehe Bilder und Downloadbereich): Höhe: 196,0 cm x Breite: 107,0 cm x Tiefe: 82,0 cm
Scheibenmaße: Höhe: 51 cm x Breite: 71 cm x 49 cm
Gewicht: 330 kg
Rauchrohrstutzen Durchmesser: 200 mm kann auf 180 mm reduziert werden, mit Genehmigung des Schornsteinfegers.
Position Rauchrohr-Anschluss: Oben
Durchmesser Anschluss Externe Luftzufuhr: 150 mm
Position Anschluss Externe Luftzufuhr: Unten
Brennstoff: Scheitholz
Holzverbrauch: 3,7 kg/h
Max. Scheitholzlänge: 50 cm
Ausstattung des Kamineinsatzes:
Scheibenspülung – Klare Sicht auf das Feuer – Luftstrom vor der Glasscheibe, dadurch wird die Verschmutzung der Scheibe minimiert
Anschluss für Externe Luftzufuhr – Optional anschließbar – Mit der Externen Luftzufuhr können Sie den Ofen mit Luft aus einem Nebenraum oder von außen beheizen. Dies wirkt sich positiv auf das Raumklima aus, da kein Sauerstoff aus dem Raum verbrannt wird. Der Anschluss für die Externe Luftzufuhr ermöglicht auch einen Anschluss einer elektronischen Verbrennungsluft Regelung
24 Stunden Betrieb möglich
Gusseisernes Glutrost und Aschetopf
Untergestell mit verstellbaren Füßen
Schamotte Feuerraum – Speichert die Wärme
Ausstattung des Kaminbausatzes:
(Hajduk Volcano WLTH 12 Wassergeführter-Kamineinsatz Links Verglast Steglos mit Rahmenloser Hebetür mit gebogenen Glas)
Speziell angefertigte Verkleidung
Stahl Tragrahmen
Kaminsockel
Querbalken
Untersims: 3 cm
Warmluftgitter im Sockelbereich der Verkleidung: 1 Stück 80 cm x 9 cm und 1 Stück 40 cm x 9 cm – erhältlich in 4 verschiedenen Farben
Warmluftgitter im Haubenbereich der Verkleidung: 1 Stück 17 x 49 cm im Deckel der Haube (oben – nicht sichtbar) oder 2 Stück 17 x 37 cm an den Seiten der Haube – erhältlich in 7 verschiedenen Farben und 2 Varianten. Für spätere Wartungsarbeiten, an zb. der Thermischen Ablaufsicherung, empfehlen wir die Lüftungsgitter an der Seite.
Montagematerialien: 2 Rauchrohrbögen, 1 Wandfutter, 1 Sack Kleber (25kg), 1 Rauchrohr Spiro, 4 SILCA Platten, Gips, Eckputzsteine, Fassadennetz
Steinelemente und ein Sinter wählbar aus: Nero Assoluto Poliert, Crema Marfil, Padang Dark, Star Galaxy, Giallo Rena, Sinter Oxide Grigio.
Gewicht der Baumaterialien: ca. 150 kg
Wichtig: Bei diesem Bausatz von Hajduk sind für die hintere Brandschutz-Dämmung 2 Silca-Platten mit jeweils 3 cm enthalten (entspricht einer Brandschutz-Dämmung von 6 cm hinten).
Bitte besprechen Sie vor dem Kauf mit Ihrem Schornsteinfeger, ob dieser Brandschutz für Ihr Bauvorhaben ausreichend ist, abhängig von den Gegebenheiten bei Ihnen vor Ort und ob Ihr Schornsteinfeger diesen Bausatz genehmigt.
Bitte beachten: Der Bausatz eignet sich am besten für den Aufbau an Schornsteinen welche in der Wand bündig verbaut sind. Sollte der Schornstein vor der Wand stehen, muss an den Seiten des Schornsteins eine tragende Wand gemauert werden, wo der Tragrahmen der oberen Konstruktion befestigt werden kann.
Daten für den Schornsteinfeger:
Bauart A1 – selbstschließende Feuerraumtür (mehrfache Belegung des Schornsteins): Ja, optional
Bundes Immisions Schutz Verordnung (BImSchV): 1. Stufe: Ja, 2. Stufe: Ja
§15a B-VG (Österreich): Ja
VKF Schweiz: Ja
CE Zeichen: Ja
Staub: 0,010 mg/Nm³
Kohlenmonoxid (CO): 1,00 g/Nm³
Wirkungsgrad: 82 %
Abgastemperatur: 240°C
Abgasmassenstrom: 10,5 g/s
Mindestförderdruck: 12 Pa
Lieferung:
Versand erfolgt durch Spedition mit 2 Paletten, Bordsteinkante
Dekorationsartikel gehören nicht zum Leistungsumfang
Wir sind nach dem aktuellen Verpackungsgesetz gemäß § 15 Abs. 1 S. 1 VerpackG dazu verpflichtet, folgende Verpackungsmaterialien von Endverbrauchern auf Wunsch unentgeltlich zurückzunehmen:
Transportverpackungen, wie etwa Paletten, Großverpackungen, etc., Verkaufs- und Umverpackungen, die nach Gebrauch typischerweise nicht bei privaten Endverbrauchern als Abfall anfallen, Verkaufs- und Umverpackungen, für die wegen Systemunverträglichkeit nach § 7 Absatz 5 eine Systembeteiligung nicht möglich ist, und Verkaufsverpackungen schadstoffhaltiger Füllgüter oder Mehrwegverpackungen.
Bei Lieferung des Produktes wird entsprechendes Verpackungsmaterial verwendet, dieses nehmen wir unentgeltlich zurück. Wir stellen damit die Rückführung des Verpackungsmaterials in den Verwertungskreislauf sicher. Durch die Aufklärung über die Rückgabemöglichkeiten sollen bessere Ergebnisse bei der Rückführung von Verpackungen erzielt werden und ein Beitrag zur Erfüllung der europäischen Verwertungsziele nach der EU-Richtlinie 94/62/EG sichergestellt werden.
Sie können das Verpackungsmaterial als Endverbraucher am Ort der tatsächlichen Übergabe oder in dessen unmittelbarer Nähe abgeben.
- Download Katalog Hajduk Kamineinsätze
- Download Katalog Hajduk Kaminbausätze
- Download Bedienungsanleitung Hajduk Wasser-Kamineinsätze
- Download Prüfzertifikat Wassergeführter-Kamineinsätze Hajduk Volcano W 12 Serie
- Download Anschlusschema Hajduk Wassergeführte Kamineinsätze
- Download Montageanleitung Hajduk Pure, Imperial und Royal Kaminbausatz
- Download Maßzeichnung Hajduk Kaminbausatz Imperial Extra Plus – WPTh und WLTh 12
- Download Aufbau- und Montageanleitung IMPERIAL, IMPERIAL MEDIUM, IMPERIAL EXTRA
- Fragen zum Artikel?
- Weitere Artikel von Hajduk

























Rezensionen
Es gibt noch keine Rezensionen.