Der Bef Twin 10 Aquatic ist ein hochwertiger Heizeinsatz der mit deutschen Herstellern vergleichbar ist, der Korpus ist aus Stahl 5 mm und Gusseisen. Das integrierte Untergestell gewährleistet, mit den 4 verstellbaren Füßen einen sicheren Stand und kann damit genau ausgerichtet werden.
Mit dem Bef Twin 10 Aquatic Tunnel / Panoramakamin hat Bef seine Produktpalette noch einmal vervollkommnet. Dieser Tunnel / Panoramakamin kann z.B. Ihr Wohn und Esszimmer mit einander, über die beiderseitigen Glasscheiben verbinden, egal wo sie Sie sich befinden haben Sie den Blick auf das wärmende Feuer.
Der Bef Twin 10 Aquatic Tunnel arbeitet mit einem aufgesetzten Wasserwärmetauscher, der bei diesen Modell notwendig wurde, da bei einem Tunnelkamin die Rückwand wie bei einem normalen Kamin nicht zur Verfügung steht, und die Wärmetauscher Fläche zu klein gewesen wäre.
Der Bef Aquatic Twin erreicht damit aber einem tollen Wirkungsgrad von 85%. Der Brennraum ist aus speziellen Carcon Speicherplatten. Ein Gusseisernes Glutrost deckt den Aschetopf am Boden ab. Auch das Stehrost ist aus Gusseisen. Der Außenluftanschluss ist sehr praktisch nach unten herausgeführt, und kann Optional mit einer Elektronischen Verbrennungsluft Regelung versehen werden. Das Keramikglas wird von den erstklassigen Weltproduzenten geliefert und garantiert einen sicheren Betrieb.
Carcon ist ein Keramischer feuerbeständiger Gussbeton, dieses Material lässt das Feuer heller wirken und hilf dabei Wärme abzugeben, auch wenn die Flammen bereits erloschen sind.
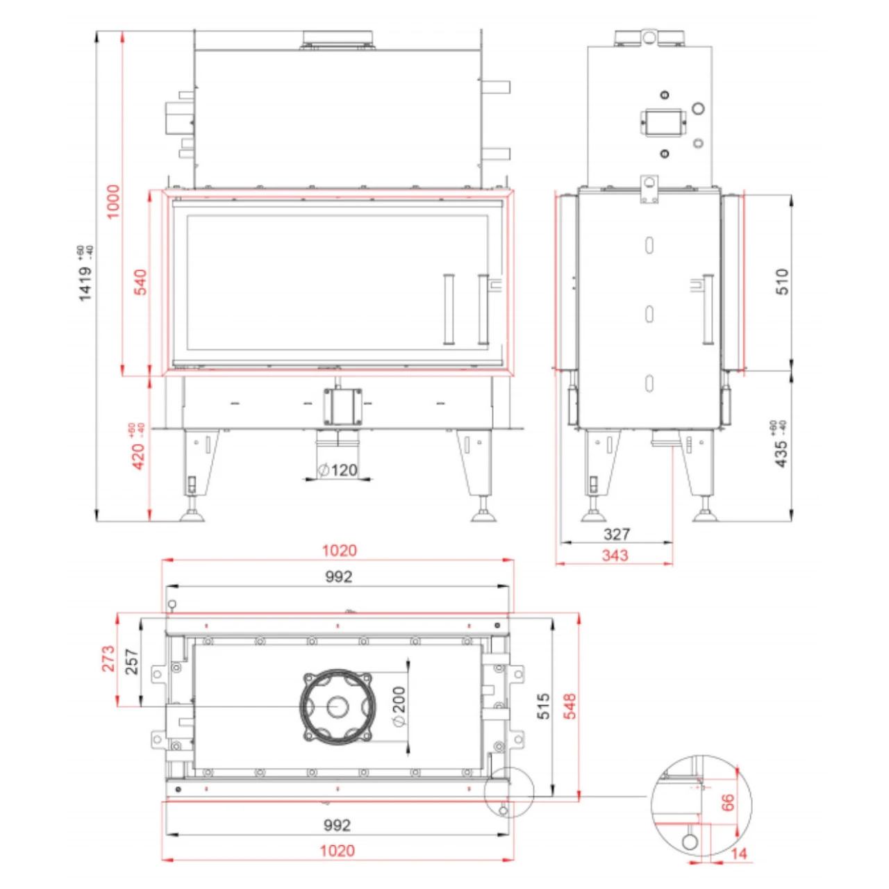
Technische Daten:
- Modell: BeF Aquatic Twin 10 Wassergeführter Kamineinsatz 20kW
- Farbe der Innenraumauskleidung: Weiß oder Schwarz
- Türmechanismus: 2 x Schwenktür Verglast
- Nennwärmeleistung: 20 kW
- Nennwärmeleistung Wasserseitig: 6,6 kW
- Wärmeleistungsbereich: 16 bis 24 kW
- Wärmeleistungsbereich Wasser: 5 bis 8,5 kW
- Gewicht: 297 kg
- Maße des Kamins: Höhe: 141,9 (+6,0/-4,0) cm x Breite: 102,0 cm x Tiefe: 54,8 cm
- Maße der Glasscheibe: Höhe: 46,8 cm x Breite: 95,0 cm
- Durchmesser Rauchrohr-Anschluss: 200 mm
- Position Rauchrohr-Anschluss: Oben
- Durchmesser Anschluss Externe Luftzufuhr: 125 mm
- Position Anschluss Externe Luftzufuhr: Unten
- Brennstoff: Scheitholz
- Maximale Scheitholzlänge: 50 cm
- Stündlicher Abbrand: 6,06 kg/h
Ausstattung:
- Scheibenspülung – Klare Sicht auf das Feuer – Luftstrom vor der Glasscheibe, dadurch wird die Verschmutzung der Scheibe minimiert
- Anschluss für Externe Luftzufuhr – Optional anschließbar – Mit der Externen Luftzufuhr können Sie den Ofen mit Luft aus einem Nebenraum oder von außen beheizen. Dies wirkt sich positiv auf das Raumklima aus, da kein Sauerstoff aus dem Raum verbrannt wird. Der Anschluss für die Externe Luftzufuhr ermöglicht auch einen Anschluss einer elektronischen Verbrennungsluft Regelung
- 24 Stunden Betrieb möglich
- Ascherost und umfangreichen Aschetopf aus Gusseisen ODER Rostlose Verbrennung (Brennraum ohne Rost) – die Holz Glut liegt direkt auf dem Carconboden des Brennraumes, dadurch wird die Glut nicht so abgekühlt und führt zu einer vollständige Holzverbrennung und einem hohen Wirkungsgrad. Sie können Wählen welche Variante Sie bevorzugen.
- Untergestell mit verstellbaren Füßen
- Brennraumauskleidung aus Carcon
- Integrierter und Isolierter Kupferwärmetauscher
- Doppelverglasung: dank der Doppelverglasung wird weniger Wärme in den Raum abgegeben und wodurch sich die Wärmeübertragung in das Wassersystem erhöht.
- Türgriff aus Leder
- 1-Regler Steuerung – Die gesamte Luftzufuhr des Ofens wir über ein Regler einfach gesteuert
Optionales Zubehör: (gegen Aufpreis)
- 4 seitiger Blendrahmen/Einbaurahmen in Schwarz 60 mm
- 4 seitiger Blendrahmen/Einbaurahmen rostfrei 60 mm
- 4 seitiger Blendrahmen/Einbaurahmen in Schwarz 80 mm
- Farbe des Carcon (Innenauskleidung): schwarz gerade, schwarz abgerundet oder weiß gerade (Standard ist weiß abgerundet)
- Versteckter Griff – Kalte Hand (für beide Seiten erhältlich)
Daten für den Schornsteinfeger:
- Bauart A1 – selbstschließende Feuerraumtür (mehrfache Belegung des Schornsteins): Ja
- Bundesimmissionsschutzverordnung (BImSchV): 2. Stufe
- §15a B-VG (Österreich): Ja
- CE Zeichen: Ja
- Staub im Rauchgas (bei 13% O2): 26 mg/Nm³
- CO-Emission (bei 13% O2): 0,065%
- Wirkungsgrad (Energieeffizienz): 85%
- Abgastemperatur: 204°C
- Abgasmassenstrom: 16,9 g/s
- Erforderlicher Druck bei Nennwärmeleistung (Mindestförderdruck): 10-12 Pa
Dekorationsartikel und Rauchrohre gehören nicht zum Leistungsumfang
Wir sind nach dem aktuellen Verpackungsgesetz gemäß § 15 Abs. 1 S. 1 VerpackG dazu verpflichtet, folgende Verpackungsmaterialien von Endverbrauchern auf Wunsch unentgeltlich zurückzunehmen:
Transportverpackungen, wie etwa Paletten, Großverpackungen, etc., Verkaufs- und Umverpackungen, die nach Gebrauch typischerweise nicht bei privaten Endverbrauchern als Abfall anfallen, Verkaufs- und Umverpackungen, für die wegen Systemunverträglichkeit nach § 7 Absatz 5 eine Systembeteiligung nicht möglich ist, und Verkaufsverpackungen schadstoffhaltiger Füllgüter oder Mehrwegverpackungen.
Bei Lieferung des Produktes wird entsprechendes Verpackungsmaterial verwendet, dieses nehmen wir unentgeltlich zurück. Wir stellen damit die Rückführung des Verpackungsmaterials in den Verwertungskreislauf sicher. Durch die Aufklärung über die Rückgabemöglichkeiten sollen bessere Ergebnisse bei der Rückführung von Verpackungen erzielt werden und ein Beitrag zur Erfüllung der europäischen Verwertungsziele nach der EU-Richtlinie 94/62/EG sichergestellt werden.
Sie können das Verpackungsmaterial als Endverbraucher am Ort der tatsächlichen Übergabe oder in dessen unmittelbarer Nähe abgeben.
- Download Katalog-Bef-Home
- Download Bedienungsanleitung BeF Wasserführende Kamineinsätze
- Download Technische Daten und Masszeichnung BeF Aquatic Twin 10
- Fragen zum Artikel?
- Weitere Artikel von BeF Home



























Rezensionen
Es gibt noch keine Rezensionen.